Mieszkanie na sprzedaż Bydgoszcz, Bielawy

3 pokoje
56.57 m²
15 114,02 zł/m2
1 piętro
MAK-MS-24947
Oblicz ratę kredytu

855 000 zł

Mieszkanie na sprzedaż
Bez prowizji

Szczegóły oferty

Inwestycja Palladium
Symbol oferty MAK-MS-24947
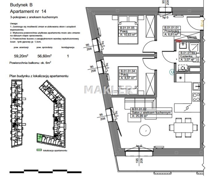
Powierzchnia 56,57 m²
Powierzchnia użytkowa [m2] 56,57 m²
Liczba pokoi 3
Rodzaj budynku blok
Technologia budowlana silikat
Standard
Piętro 1
Liczba pięter w budynku 5
Balkon jest
Rok budowy 2025
Ogrzewanie miejskie
Winda tak
Pomieszczenia
Łukasz Gorczyński

Łukasz Gorczyński

Doradca Rynku Nieruchomości Rynek Pierwotny

Napisz wiadomość 235 Ofert

Opis nieruchomości

Biuro Makler poleca: 

Szukasz NOWEGO DEVELOPERSKIEGO mieszkania?
Zależy Ci na cichej okolicy, bliskości terenów zielonych, oraz bliskości pięknego nowego kampusu Akademii Muzycznej?
Potrzebujesz bezpieczeństwa w postaci zamkniętego osiedla?

Jeśli TAK to ta oferta jest właśnie dla Ciebie !!


Kupujący nie płaci podatku PCC!! oraz prowizji do biura!!



Przedstawiamy 3 pokojowe mieszkanie o powierzchni 56,57m2 na 1 piętrze w bloku z cichą windą.


Opis inwestycji:


Doskonała lokalizacja, centrum Bydgoszczy i adres, który ma znaczenie. Tylko dwa budynki w wysokim standardzie na kameralnym osiedlu. W sąsiedztwie eleganckich, przedwojennych domów, nowoczesnych apartamentów i kampusu Akademii Muzycznej. Miejsce, w którym można korzystać ze wszystkich zalet zamieszkiwania w centrum miasta i jednocześnie cieszyć się zielenią, spokojem oraz niespiesznym tempem życia.

Osiedle które powstaje przy nowym kampusie Akademii Muzycznej w Bydgoszczy 
to funkcjonalne, mieszkania i przestronne apartamenty z wygodnymi, tarasami.

Do dyspozycji mieszkańców podziemna hala garażowa, cichobieżne windy i zagospodarowany zielenią przepiękne patio, w którym zostanie zasadzone 300 drzew i krzewów, oraz wiele, wiele innych atutów

W standardzie:

- ELEWACJA WENTYLOWANA ALUCOBOND / HPL
- OKNA 3-SZYBOWE Z SYSTEMEM ROLET LUB ŻALUZJI
- LUKSUSOWE LOBBY
- MUZYKA PRZY WEJŚCIACH I DYFUZORY ZAPACHU
- CENTRALNA STACJA UZDATNIANIA WODY
- INTELIGENTNE WINDY I WIDEOFONY
- PODZIEMNA HALA GARAŻOWA
- PONAD 300 DRZEW I KRZEWÓW
- INTELIGENTNE NAWADNIANIE I ROBOTY KOSZĄCE
- TEREN ZAMKNIĘTY / MONITOROWANY

W pobliżu inwestycji:

- 5 m NOWA AKADEMIA MUZYCZNA
- 800 m UNIWERSYTET KAZIMIERZA WIELKIEGO
- 500 m TEATR POLSKI
- 750 m FILHARMONIA POMORSKA

- Szpital Dziecięcy

- Cukiernia Staropolska
- Stacja Roweru Aglomeracyjnego
- Stadion Lekkoatletyczny „Zawisza”
- Park Kochanowskiego
- Tako Sushi
- Park Handlowy 
- Stadion Polonia Bydgoszcz
- Park Botaniczny
- Focus Mall
- Centrum Trampolin
- Korty tenisowe


Budynek zostanie oddany do użytku w IV kwartale 2025


Zapraszam na prezentację!!

Lokalizacja nieruchomości

Kalkulatory

Kalkulator kredytowy

Wysokość raty

PLN
%

Kalkulator kosztów

Taksa notarialna
(opłata notarialna)

Wniosek o wpis do KW

VAT od prowizji
agencji nieruchomości

VAT od taksy notarialnej
(opłaty notarialnej)

Prowizja agencji nieruchomości

Wypisy aktu notarialnego

Razem

Uwaga: mogą wystąpić dodatkowe opłaty za założenie księgi wieczystej oraz ustanowienie hipoteki.

PLN
PLN
PLN
PLN
PLN
%
PLN

Podobne oferty

Oferta specjalna

Mieszkanie na sprzedaż

Bydgoszcz, Bielawy

4 pokoje 85 m2 12 200,00 zł/m2
Oferta specjalna
Oferta specjalna

Mieszkanie na sprzedaż

Bydgoszcz, Bielawy

3 pokoje 61 m2 11 900,00 zł/m2
Oferta specjalna
Oferta specjalna

Mieszkanie na sprzedaż

Bydgoszcz, Bielawy

3 pokoje 60 m2 11 800,00 zł/m2
Oferta specjalna
Oferta specjalna

Mieszkanie na sprzedaż

Bydgoszcz, Bielawy

4 pokoje 87 m2 11 800,00 zł/m2
Oferta specjalna

Doradca Rynku Nieruchomości Rynek Pierwotny

Proszę wprowadzić poprawne imię i nazwisko
Proszę wprowadzić poprawny numer telefonu
Proszę wprowadzić poprawny adres e-mail
Proszę zaznaczyć wymagane zgody
Rozwiąż równanie:
15 6
Niepoprawny wynik