Mieszkanie na sprzedaż Bydgoszcz, Śródmieście

3 pokoje
58.24 m²
11 700,00 zł/m2
parter
MAK-MS-28219
Oblicz ratę kredytu

681 408 zł

Mieszkanie na sprzedaż
Bez prowizji

Szczegóły oferty

Symbol oferty MAK-MS-28219
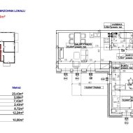
Powierzchnia 58,24 m²
Powierzchnia użytkowa [m2] 58,24 m²
Liczba pokoi 3
Rodzaj budynku blok
Technologia budowlana silikat
Standard
Piętro parter
Liczba pięter w budynku 3
Balkon jest
Rok budowy 2025
Ogrzewanie miejskie
Winda tak
Pomieszczenia
Łukasz Gorczyński

Łukasz Gorczyński

Doradca Rynku Nieruchomości Rynek Pierwotny

Napisz wiadomość 221 Ofert

Opis nieruchomości

Szukasz NOWEGO DEVELOPERSKIEGO mieszkania w świetnej lokalizacji?
Zależy Ci na cichej okolicy i bliskości Centrum miasta?
Potrzebujesz bezpieczeństwa w postaci zamkniętego osiedla?

Jeśli TAK to ta oferta jest właśnie dla Ciebie !!


Kupujący nie płaci podatku PCC!! oraz prowizji do biura!!



Przedstawiamy 3 pokojowe mieszkanie o powierzchni 58,24 m2 na parterze nowoczesnego bloku 


Opis inwestycji:


Nowa inwestycja w bliskości Centrum miasta to jedyna w swoim rodzaju propozycja na mapie Bydgoszczy. Nowoczesny 3 piętrowy budynek zrealizowany zostanie w wysokim standardzie budowlanym.

Niewątpliwym udogodnieniem, wyróżniającym budynek wśród bydgoskich inwestycji mieszkaniowych, jest jego bardzo dobra lokalizacja. Bliskość Centrum miasta jest na wyciągnięcie ręki

Nowa inwestycja to nie tylko nowoczesna architektura. Budynek wypełniony będzie licznymi udogodnieniami zapewniającymi komfort życia na najwyższym poziomie. Elegancka i ponadczasowa klatka schodowa, wykończona bardzo dobrymi materiałami będzie wizytówką budynku..

Na osiedlu z pewnością nie zbraknie także urozmaiconych gatunków roślin wpasowujących się w śródmiejski klimat otaczający inwestycję

Zróżnicowane metraże i starannie przemyślane układy sprawiają, że znajdziesz tu swój wymarzony dom. Z myślą o komforcie mieszkańców zadbano o ograniczenie do minimum ruchu pojazdów na osiedlu, które zaraz po wjeździe skierują się do garaży podziemnych.

Lokalizacja:

Wyspa Młyńska - zaledwie 15 minut spacerem od planowanej inwestycji znajduje się malownicza Wyspa Młyńska. To idealne miejsce na relaksujący spacer wśród zieleni, piknik z przyjaciółmi lub spokojny wypoczynek nad wodą.
Stare Miasto - w ciągu 20 minut pieszo dotrzesz do tętniącego życiem Starego Miasta, gdzie czeka na Ciebie bogata oferta kulturalna, restauracje, kawiarnie oraz zabytkowe budowle, takie jak Katedra Bydgoska czy słynne Spichrze nad Brdą.
Opera Nova - miłośnicy sztuki docenią bliskość Opery Nova, do której dotrzesz w zaledwie 15 minut. To doskonałe miejsce, aby cieszyć się spektaklami operowymi, baletowymi oraz koncertami w wyjątkowej atmosferze.

Zapraszam na prezentację!!

Lokalizacja nieruchomości

Kalkulatory

Kalkulator kredytowy

Wysokość raty

PLN
%

Kalkulator kosztów

Taksa notarialna
(opłata notarialna)

Wniosek o wpis do KW

VAT od prowizji
agencji nieruchomości

VAT od taksy notarialnej
(opłaty notarialnej)

Prowizja agencji nieruchomości

Wypisy aktu notarialnego

Razem

Uwaga: mogą wystąpić dodatkowe opłaty za założenie księgi wieczystej oraz ustanowienie hipoteki.

PLN
PLN
PLN
PLN
PLN
%
PLN

Podobne oferty

Mieszkanie na sprzedaż

Bydgoszcz, Śródmieście

2 pokoje 36 m2 14 578,65 zł/m2

Mieszkanie na sprzedaż

Bydgoszcz, Śródmieście

2 pokoje 59 m2 10 077,39 zł/m2
Bez prowizji

Mieszkanie na sprzedaż

Bydgoszcz, Śródmieście

3 pokoje 53 m2 11 300,00 zł/m2
Bez prowizji
Nowa oferta

Mieszkanie na sprzedaż

Bydgoszcz, Śródmieście

4 pokoje 135 m2 4 577,78 zł/m2
Nowa oferta

Doradca Rynku Nieruchomości Rynek Pierwotny

Proszę wprowadzić poprawne imię i nazwisko
Proszę wprowadzić poprawny numer telefonu
Proszę wprowadzić poprawny adres e-mail
Proszę zaznaczyć wymagane zgody
Rozwiąż równanie:
26 1
Niepoprawny wynik