Mieszkanie na sprzedaż Nowa Wieś Wielka, Brzoza

4 pokoje
87.78 m²
5 684,67 zł/m2
parter
MAK-MS-27391
Oblicz ratę kredytu

499 000 zł

Mieszkanie na sprzedaż
Bez prowizji

Szczegóły oferty

Symbol oferty MAK-MS-27391
Powierzchnia 87,78 m²
Powierzchnia użytkowa [m2] 87,78 m²
Liczba pokoi 4
Liczba sypialni 3
Rodzaj budynku blok
Technologia budowlana cegła
Standard
Piętro parter
Liczba pięter w budynku 1
Okna nowe PCV
Balkon taras
Rok budowy 2025
Otoczenie las
Ogrzewanie pompa ciepła
Pomieszczenia
Podłogi pokoi wylewka
Rodzaj kuchni aneks kuchenny - połączony z salonem
Liczba łazienek 1
Liczba WC 2
Liczba przedpokoi 2
Jarosław Jędryczka

Jarosław Jędryczka

Manager

Napisz wiadomość 37 Ofert

Opis nieruchomości

Zamień mieszkanie na dom – w cenie mieszkania!

Tylko Treraz cena 499.000zł stan deweloperski !!!

Na sprzedaż dom w malowniczej Brzozie  k. Bydgoszczy – Osiedle Brzozowy Zakątek

Zapraszamy do zapoznania się z ofertą nowoczesnego domu o powierzchni 87,78 m², położonego w urokliwej okolicy, w sąsiedztwie Kanału Noteckiego. To idealne miejsce dla osób ceniących spokój i bliskość natury, a jednocześnie dogodny dostęp do niezbędnej infrastruktury. Dom znajduje się w spokojnej części Brzozy, a zarazem w jej centrum, co zapewnia szybki dostęp do szkoły, przedszkola, sklepów, przychodni i innych punktów usługowych.

Opis nieruchomości:

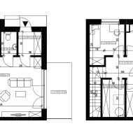
  • Parter: przestronny salon z aneksem kuchennym oraz wyjściem na duży taras, przedsionek, łazienka.

  • Piętro: trzy komfortowe sypialnie, łazienka oraz praktyczna garderoba.

  • Dwa miejsca postojowe przed budynkiem.

  • Standard wykończenia: stan deweloperski, ogrzewanie podłogowe, elewacja zewnętrzna wykończona, ogrodzenie oraz kostka brukowa na podjeździe.

  • Okna trzyszybowe zapewniające doskonałą izolację termiczną i akustyczną.

  • Drzwi wejściowe antywłamaniowe zwiększające bezpieczeństwo mieszkańców.

Osiedle Brzozowy Zakątek:

  • Osiedle ogrodzone, z bramą wjazdową.

  • Drogi dojazdowe wykostkowane.

  • Całość wyposażona w nowoczesne oświetlenie osiedlowe.

Dom położony jest w otoczeniu zieleni, co zapewnia relaksującą atmosferę i doskonałe warunki do odpoczynku. To doskonała propozycja dla rodzin, które szukają nowoczesnego i funkcjonalnego domu w spokojnej, a jednocześnie dobrze skomunikowanej okolicy.

Zapraszamy do kontaktu i obejrzenia nieruchomości!

Lokalizacja nieruchomości

Kalkulatory

Kalkulator kredytowy

Wysokość raty

PLN
%

Kalkulator kosztów

Taksa notarialna
(opłata notarialna)

Wniosek o wpis do KW

VAT od prowizji
agencji nieruchomości

VAT od taksy notarialnej
(opłaty notarialnej)

Prowizja agencji nieruchomości

Wypisy aktu notarialnego

Razem

Uwaga: mogą wystąpić dodatkowe opłaty za założenie księgi wieczystej oraz ustanowienie hipoteki.

PLN
PLN
PLN
PLN
PLN
%
PLN

Manager

Proszę wprowadzić poprawne imię i nazwisko
Proszę wprowadzić poprawny numer telefonu
Proszę wprowadzić poprawny adres e-mail
Proszę zaznaczyć wymagane zgody
Rozwiąż równanie:
10 1
Niepoprawny wynik