Mieszkanie na sprzedaż Bydgoszcz, Czyżkówko

2 pokoje
37.60 m²
11 950,00 zł/m2
parter
MAK-MS-28935
Oblicz ratę kredytu

449 320 zł

Mieszkanie na sprzedaż
Nowa oferta

Szczegóły oferty

Inwestycja Czyżkówko piekna nowa inwestycja
Symbol oferty MAK-MS-28935
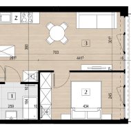
Powierzchnia 37,60 m²
Powierzchnia użytkowa [m2] 37,60 m²
Liczba pokoi 2
Rodzaj budynku blok
Technologia budowlana silikat
Standard
Piętro parter
Liczba pięter w budynku 2
Balkon taras
Rok budowy 2026
Ogrzewanie miejskie
Winda tak
Pomieszczenia
Łukasz Gorczyński

Łukasz Gorczyński

Doradca Rynku Nieruchomości Rynek Pierwotny

Napisz wiadomość 202 Ofert

Opis nieruchomości

Biuro Makler poleca: 

Szukasz NOWEGO DEVELOPERSKIEGO mieszkania w świetnej lokalizacji?
Zależy Ci na cichej okolicy i bliskości terenów zielonych?
Potrzebujesz bezpieczeństwa w postaci zamkniętego osiedla?

Jeśli TAK to ta oferta jest właśnie dla Ciebie !!


Kupujący nie płaci podatku PCC!! oraz prowizji do biura!!



Przedstawiamy 2 pokojowe, mieszkanie o powierzchni 37,6 m2 w bloku z cichą windą, tarasem i ogrodem na osiedlu Czyżkówko. 



Zakończenie budowy do 31.12.2026


Opis inwestycji:

Inwestycja została stworzona z myślą o spełnieniu marzeń osób poszukujących alternatywy dla domu z ogrodem, zapewniając najwyższy komfort życia w wielkomiejskim stylu.

Inwestycja stworzona na osiedlu Czyżkówko to dwa kameralne budynki, w których powstanie łącznie  37 apartamentów w metrażach od 37 m² do 105 m². Do mieszkań na parterze przynależą prywatne ogródki, a mieszkania na piętrach posiadają balkony lub tarasy z szklanymi balustradami. Dwie, białe bryły wyróżnią się nowoczesnym designem. Te budynki to nie tylko estetyka, lecz przede wszystkim funkcjonalność i dbałość o komfort jego przyszłych mieszkańców.


Budynki zostały wyposażone w:

Drzwi wejściowe antywłamaniowe klasa RC3

Okna trzyszybowe, wyposażone w rolety zewnętrzne sterowane automatycznie

Mieszkania wykończone gładzią

Ogrzewanie podłogowe, strefowe

Mieszkania wyposażone w videodomofony

Szklane balustrady

Wykończone, przestronne balkony

Ogródki z automatyką do podlewania

Podziemna hala garażowa z komórkami lokatorskimi

Osiedle ogrodzone i monitorowane
 

LOKALIZACJA:

Osiedle Czyżkówko jest doskonale zagospodarowaną częścią Bydgoszczy, nie brakuje tu szkół, przedszkoli, przychodni i sklepów, a wysoko rozwinięta komunikacja pozwala bezpośrednio dotrzeć w każdą część Bydgoszczy.

Inwestycja powstaje w wyjątkowym miejscu, w zielonym sercu Bydgoszczy. Prestiżowa lokalizacja, stylowa architektura inspirowana najnowszymi trendami światowego designu. Tu odnajdziesz wymarzony spokój, którego szukasz po intensywnym dniu. 

Kliknij " wyślij wiadomość " bądź zadzwoń aby dowiedzieć się więcej!


Zapraszam na prezentację!!



Pełny cennik wszystkich lokali i dodatkowych elementów znajduje się tutaj:
www.nkpolska.eu

 

Lokalizacja nieruchomości

Kalkulatory

Kalkulator kredytowy

Wysokość raty

PLN
%

Kalkulator kosztów

Taksa notarialna
(opłata notarialna)

Wniosek o wpis do KW

VAT od prowizji
agencji nieruchomości

VAT od taksy notarialnej
(opłaty notarialnej)

Prowizja agencji nieruchomości

Wypisy aktu notarialnego

Razem

Uwaga: mogą wystąpić dodatkowe opłaty za założenie księgi wieczystej oraz ustanowienie hipoteki.

PLN
PLN
PLN
PLN
PLN
%
PLN

Podobne oferty

Mieszkanie na sprzedaż

Bydgoszcz, Czyżkówko

2 pokoje 37 m2 12 050,00 zł/m2
Bez prowizji

Mieszkanie na sprzedaż

Bydgoszcz, Czyżkówko

2 pokoje 52 m2 10 850,00 zł/m2
Bez prowizji
Nowa oferta

Mieszkanie na sprzedaż

Bydgoszcz, Czyżkówko

3 pokoje 57 m2 9 122,79 zł/m2
Nowa oferta
Oferta specjalna

Mieszkanie na sprzedaż

Bydgoszcz, Czyżkówko

2 pokoje 34 m2 11 255,92 zł/m2
Oferta specjalna

Doradca Rynku Nieruchomości Rynek Pierwotny

Proszę wprowadzić poprawne imię i nazwisko
Proszę wprowadzić poprawny numer telefonu
Proszę wprowadzić poprawny adres e-mail
Proszę zaznaczyć wymagane zgody
Rozwiąż równanie:
19 8
Niepoprawny wynik