Mieszkanie na sprzedaż Bydgoszcz, Okole

2 pokoje
35.90 m²
10 750,00 zł/m2
2 piętro
MAK-MS-28017
Oblicz ratę kredytu

385 925 zł

Mieszkanie na sprzedaż
Oferta specjalna

Szczegóły oferty

Inwestycja Nowe budownictwo 2025rok Okole
Symbol oferty MAK-MS-28017
Powierzchnia 35,90 m²
Powierzchnia użytkowa [m2] 35,90 m²
Liczba pokoi 2
Rodzaj budynku blok
Technologia budowlana silikat
Standard
Piętro 2
Liczba pięter w budynku 4
Balkon jest
Rok budowy 2025
Ogrzewanie miejskie
Winda tak
Pomieszczenia
Łukasz Gorczyński

Łukasz Gorczyński

Doradca Rynku Nieruchomości Rynek Pierwotny

Napisz wiadomość 212 Ofert

Opis nieruchomości

Biuro Makler poleca:


Szukasz NOWEGO DEVELOPERSKIEGO mieszkania?
Zależy Ci na mieszkaniu w centrum miasta i bliskości terenów zielonych?
Potrzebujesz bezpieczeństwa w postaci zamkniętego osiedla?

Jeśli TAK to ta oferta jest właśnie dla Ciebie !!


Nowa inwestycja w Centrum Bydgoszczy!!


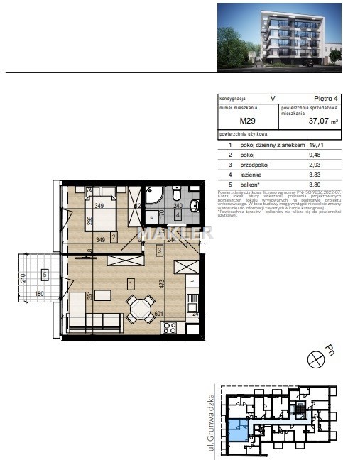
Mieszkanie 2 pokojowe o powierzchni 37,07m2, na 2 piętrze nowo powstałego budynku. 


Fenomenalnie mieszkanie pod inwestycję, jaki dla własnego zamieszkania!!

 

Wśród nowych inwestycji deweloperskich w Bydgoszczy ta inwestycja wyróżnia się nowoczesnym designem oraz kameralnością w postaci niewielu mieszkań w budynku, niezwykle różnorodnych zarówno pod względem metrażu, jak i innych parametrów. 

W standardzie inwestycji znajduje się:

  • System inteligentnego sterowania mieszkaniem FIBARO umożliwiający m.in. zdalne sterowanie ogrzewaniem oraz roletami okiennymi
  • Wideodomofony
  • Ogrzewanie podłogowe dla komfortu i swobody aranżacji pomieszczeń nieograniczonej umieszczeniem grzejnika
  • Deska kompozytowa na balkonach i tarasach
  • Panoramiczne okna trzyszybowe z roletami
  • Komórki lokatorskie 
  • Nowoczesna aranżacja korytarzy i klatek schodowych
  • Miejsca postojowe z monitoringiem
  • Cichobieżne windy
  • Osiedle w pełni monitorowane z kodowaną kontrolą dostępu do pomieszczeń wspólnych

Deweloper zadbał o świetną lokalizację inwestycji.  Lokalizacja w centrum zapewnia dostęp do różnorodnych usług oraz łatwą komunikację z pozostałymi dzielnicami miasta.

Sąsiedztwo malowniczego parku nad kanałem pozwala zarówno na spokojny odpoczynek, jak i na aktywne spędzanie wolnego czasu w otoczeniu przyrody. Mieszkania zlokalizowane na ulicy Grunwaldzkiej w stanie deweloperskim zapewnią Ci tak bliskość natury, jak i ważnych węzłów komunikacyjnych oraz punktów handlowych.

Mieszkania, które oferuje deweloper w Bydgoszczy to spełnienie marzeń osób kochających kontakt z przyrodą, ale też liczne wydarzenia kulturowe czy zwyczajny dostęp do wszystkiego, co dzieje się w mieście. Park nad starym kanałem to przede wszystkim:

  • ścieżki i trasy rowerowe,
  • bliskość natury,
Kliknij " wyślij wiadomość " bądź zadzwoń aby dowiedzieć się więcej!


Zapraszam na prezentację!!



Pełny cennik wszystkich lokali i dodatkowych elementów znajduje się tutaj:
www.nkpolska.eu

Lokalizacja nieruchomości

Kalkulatory

Kalkulator kredytowy

Wysokość raty

PLN
%

Kalkulator kosztów

Taksa notarialna
(opłata notarialna)

Wniosek o wpis do KW

VAT od prowizji
agencji nieruchomości

VAT od taksy notarialnej
(opłaty notarialnej)

Prowizja agencji nieruchomości

Wypisy aktu notarialnego

Razem

Uwaga: mogą wystąpić dodatkowe opłaty za założenie księgi wieczystej oraz ustanowienie hipoteki.

PLN
PLN
PLN
PLN
PLN
%
PLN

Podobne oferty

Oferta specjalna

Mieszkanie na sprzedaż

Bydgoszcz, Okole

2 pokoje 39 m2 11 508,95 zł/m2
Oferta specjalna
Oferta specjalna

Mieszkanie na sprzedaż

Bydgoszcz, Okole

3 pokoje 45 m2 10 600,00 zł/m2
Oferta specjalna
Oferta specjalna

Mieszkanie na sprzedaż

Bydgoszcz, Okole

2 pokoje 50 m2 9 677,42 zł/m2
Oferta specjalna

Doradca Rynku Nieruchomości Rynek Pierwotny

Proszę wprowadzić poprawne imię i nazwisko
Proszę wprowadzić poprawny numer telefonu
Proszę wprowadzić poprawny adres e-mail
Proszę zaznaczyć wymagane zgody
Rozwiąż równanie:
30 9
Niepoprawny wynik