Mieszkanie na sprzedaż Bydgoszcz, Fordon, Stary Fordon

2 pokoje
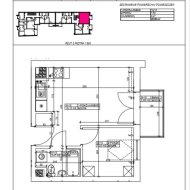
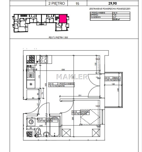
29.90 m²
10 665,55 zł/m2
2 piętro
MAK-MS-28538
Oblicz ratę kredytu

318 900 zł

Mieszkanie na sprzedaż
Nowa oferta

Szczegóły oferty

Inwestycja Fordon nad Wisłą
Symbol oferty MAK-MS-28538
Powierzchnia 29,90 m²
Powierzchnia użytkowa [m2] 29,90 m²
Liczba pokoi 2
Rodzaj budynku blok
Technologia budowlana silikat
Standard
Piętro 2
Liczba pięter w budynku 3
Balkon jest
Rok budowy 2024
Ogrzewanie miejskie
Pomieszczenia
Łukasz Gorczyński

Łukasz Gorczyński

Doradca Rynku Nieruchomości Rynek Pierwotny

Napisz wiadomość 213 Ofert

Opis nieruchomości

Biuro Makler poleca: 

Szukasz NOWEGO DEVELOPERSKIEGO mieszkania?
Zależy Ci na cichej okolicy, oraz bliskości terenów zielonych?
Potrzebujesz bezpieczeństwa w postaci zamkniętego osiedla, oraz pełnej infrastruktury wokół?

Jeśli TAK to ta oferta jest właśnie dla Ciebie !!


Kupujący nie płaci podatku PCC!! oraz prowizji do biura!!



Przedstawiamy 2 pokojowe mieszkanie o powierzchni 29,90 m2 na 2 piętrze w bloku usytuowanym w bliskości pięknych terenów zielonych.


Budynek świeżo oddany do użytkowania!! Nic tylko wykańczać i mieszkać!!

Śpiesz się, gdyż te mieszkania szybko zostaną wyprzedane!!



Opis inwestycji:


Mieszkania z widokiem na Wisłę!


Nowo powstała inwestycja to budynek mieszkalny o 3 kondygnacjach naziemnych z poddaszem użytkowym w zabudowie pierzejowej, w którym zaprojektowano 16 mieszkań: od 30 do 57 m2, lokal usługowy oraz 6 garaży. Dwa mieszkania w parterze przystosowano w pełni dla potrzeb osób niepełnosprawnych.

Inwestycja położona jest w dzielnicy Starego Fordonu, który w ramach rewitalizacji został  zmodernizowany i odnowiony. Przebudowano wiele uliczek, odnowiono kamienice a płytę rynku wyposażono w efektowną fontannę. Nabrzeże Wisły wyposażono w oświetlenie, ławki i siedziska, stojaki na rowery, w kamery obrotowe, które zostały połączone z monitoringiem miejskim. Wzmocnienie potencjału nadbrzeża posłuży Mieszkańcom na korzystanie z transportu wodnego i stało się miejscem wypoczynku, rekreacji oraz doskonałym punktem widokowym na Wisłę.
Budynek jest świetnie zlokalizowany. Przystanki komunikacji miejskiej znajdują się zaraz obok
a najbliższy sieciowy market spożywczego odległy jest o kilka kroków. Po drugiej stronie ulicy, przy Synagodze, niedawno powstał letni ogródek z ofertą gastronomiczną.  

Kliknij " wyślij wiadomość " bądź zadzwoń aby dowiedzieć się więcej!


Zapraszam na prezentację!!



Pełny cennik wszystkich lokali i dodatkowych elementów znajduje się tutaj:
www.pubr.com.pl

Lokalizacja nieruchomości

Kalkulatory

Kalkulator kredytowy

Wysokość raty

PLN
%

Kalkulator kosztów

Taksa notarialna
(opłata notarialna)

Wniosek o wpis do KW

VAT od prowizji
agencji nieruchomości

VAT od taksy notarialnej
(opłaty notarialnej)

Prowizja agencji nieruchomości

Wypisy aktu notarialnego

Razem

Uwaga: mogą wystąpić dodatkowe opłaty za założenie księgi wieczystej oraz ustanowienie hipoteki.

PLN
PLN
PLN
PLN
PLN
%
PLN

Podobne oferty

Bez prowizji

Mieszkanie na sprzedaż

Bydgoszcz, Fordon

2 pokoje 32 m2 10 500,00 zł/m2
Bez prowizji
Oferta specjalna

Mieszkanie na sprzedaż

Bydgoszcz, Fordon

2 pokoje 42 m2 8 900,00 zł/m2
Oferta specjalna
Oferta specjalna

Mieszkanie na sprzedaż

Bydgoszcz, Fordon

2 pokoje 37 m2 11 054,05 zł/m2
Oferta specjalna
Oferta na wyłączność

Mieszkanie na sprzedaż

Bydgoszcz, Fordon

2 pokoje 33 m2 11 374,25 zł/m2
Oferta na wyłączność

Doradca Rynku Nieruchomości Rynek Pierwotny

Proszę wprowadzić poprawne imię i nazwisko
Proszę wprowadzić poprawny numer telefonu
Proszę wprowadzić poprawny adres e-mail
Proszę zaznaczyć wymagane zgody
Rozwiąż równanie:
26 8
Niepoprawny wynik