Mieszkanie na sprzedaż Bydgoszcz, Bielawy

4 pokoje
85.90 m²
12 200,00 zł/m2
parter
MAK-MS-27815
Oblicz ratę kredytu

1 047 980 zł

Mieszkanie na sprzedaż
Oferta specjalna

Szczegóły oferty

Symbol oferty MAK-MS-27815
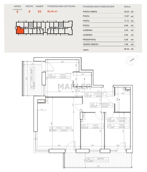
Powierzchnia 85,90 m²
Powierzchnia użytkowa [m2] 85,90 m²
Liczba pokoi 4
Rodzaj budynku blok
Technologia budowlana silikat
Standard
Piętro parter
Liczba pięter w budynku 4
Balkon jest
Rok budowy 2025
Ogrzewanie miejskie
Winda tak
Pomieszczenia
Łukasz Gorczyński

Łukasz Gorczyński

Doradca Rynku Nieruchomości Rynek Pierwotny

Napisz wiadomość 223 Ofert

Opis nieruchomości

Biuro Makler poleca: 

Szukasz NOWEGO DEVELOPERSKIEGO mieszkania?
Zależy Ci na cichej okolicy, bliskości terenów zielonych, oraz bliskości pięknego nowego kampusu Akademii Muzycznej?
Potrzebujesz bezpieczeństwa w postaci zamkniętego osiedla?

Jeśli TAK to ta oferta jest właśnie dla Ciebie !!


Kupujący nie płaci podatku PCC!! oraz prowizji do biura!!



Przedstawiamy 4 pokojowe mieszkanie o powierzchni 85,90 m2 na parterze w bloku z cichą windą.


Opis inwestycji


Doskonała lokalizacja, centrum Bydgoszczy i adres, który ma znaczenie. Tylko trzy budynki w wysokim standardzie na kameralnym osiedlu. W sąsiedztwie eleganckich, przedwojennych domów, nowoczesnych apartamentów i kampusu Akademii Muzycznej. Miejsce, w którym można korzystać ze wszystkich zalet zamieszkiwania w centrum miasta i jednocześnie cieszyć się zielenią, spokojem oraz niespiesznym tempem życia.

Osiedle które powstaje przy nowym kampusie Akademii Muzycznej w Bydgoszczy 
to 102 funkcjonalne, klimatyzowane mieszkania i przestronne apartamenty z balkonami, tarasami lub własnymi ogródkami w budynku A oraz 109 lokali mieszkalnych w budynku B.

Do dyspozycji mieszkańców podziemna hala garażowa z możliwością ładowania pojazdów elektrycznych, komórki lokatorskie, cichobieżne windy i zagospodarowany zielenią dziedziniec.

Budynek zostanie oddany do użytku w IV kwartale 2025


Kliknij " wyślij wiadomość " bądź zadzwoń aby dowiedzieć się więcej!


Zapraszam na prezentację!!



Pełny cennik wszystkich lokali i dodatkowych elementów znajduje się tutaj:
www.grupamoderator.pl

Lokalizacja nieruchomości

Kalkulatory

Kalkulator kredytowy

Wysokość raty

PLN
%

Kalkulator kosztów

Taksa notarialna
(opłata notarialna)

Wniosek o wpis do KW

VAT od prowizji
agencji nieruchomości

VAT od taksy notarialnej
(opłaty notarialnej)

Prowizja agencji nieruchomości

Wypisy aktu notarialnego

Razem

Uwaga: mogą wystąpić dodatkowe opłaty za założenie księgi wieczystej oraz ustanowienie hipoteki.

PLN
PLN
PLN
PLN
PLN
%
PLN

Podobne oferty

Oferta specjalna

Mieszkanie na sprzedaż

Bydgoszcz, Bielawy

4 pokoje 85 m2 12 200,00 zł/m2
Oferta specjalna
Oferta specjalna

Mieszkanie na sprzedaż

Bydgoszcz, Bielawy

4 pokoje 87 m2 11 800,00 zł/m2
Oferta specjalna
Oferta specjalna

Mieszkanie na sprzedaż

Bydgoszcz, Bielawy

5 pokoi 81 m2 11 500,00 zł/m2
Oferta specjalna
Bez prowizji

Mieszkanie na sprzedaż

Bydgoszcz, Bielawy

3 pokoje 56 m2 13 888,49 zł/m2
Bez prowizji

Doradca Rynku Nieruchomości Rynek Pierwotny

Proszę wprowadzić poprawne imię i nazwisko
Proszę wprowadzić poprawny numer telefonu
Proszę wprowadzić poprawny adres e-mail
Proszę zaznaczyć wymagane zgody
Rozwiąż równanie:
25 8
Niepoprawny wynik