Dom na sprzedaż Nowa Wieś Wielka, Brzoza

4 pokoje
87.80 m²
6 252,85 zł/m2
MAK-DS-28214
Oblicz ratę kredytu

549 000 zł

Dom na sprzedaż
Nowa oferta

Szczegóły oferty

Symbol oferty MAK-DS-28214
Powierzchnia 87,80 m²
Powierzchnia użytkowa [m2] 87,80 m²
Powierzchnia działki [m2] 1 500 m²
Liczba pokoi 4
Liczba sypialni 3
Rodzaj domu bliźniak
Standard
Okna nowe PCV
Rok budowy 2025
Otoczenie las
Ogrzewanie pompa ciepła
Pomieszczenia
Podłogi pokoi wylewka
Rodzaj kuchni aneks kuchenny - połączony z jadalnią
Liczba łazienek 1
Liczba WC 2
Liczba przedpokoi 2
Karolina Gorczyńska

Karolina Gorczyńska

Doradca Rynku Nieruchomości

Napisz wiadomość 35 Ofert

Opis nieruchomości

Zapraszamy Państwa do zapoznania się z ofertą wyjątkowego osiedla "Brzozowy Zakątek" w miejscowości Brzoza pod Bydgoszczą – miejsca, które łączy nowoczesność, komfort i spokój życia w otoczeniu natury.
To kameralne osiedle zostało stworzone z myślą o rodzinach, które poszukują wygody i bezpieczeństwa, jednocześnie ceniąc sobie bliskość miasta oraz kontakt z przyrodą.

Jeśli chcesz zmienić ciasne mieszkanie w szarym bloku a obawiasz się obowiązków i kosztów związanych z utrzymaniem domu – to idealna propozycja!

BRZOZOWY ZAKĄTEK to połączenie przestronnych wnętrz w otoczeniu lasu oraz niewymagające dużej obsługi nieruchomości!!!

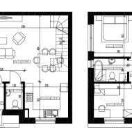
Przedmiotem oferty jest mieszkanie o łącznej powierzchni 87,78m2 podzielonej na 2 piętra.

PARTER: 
- przedsionek 3,42m2
- WC 2,27m2
- salon 28,55m2
- kuchnia 8,02m2
- taras 9m2

PIĘTRO:
- korytarz 4,37m2
- pokój 7,72m2
- pokój 8,63m2
- pokój 3,98m2
- łazienka 10,7m2
- garderoba 5,26m2

Do nieruchomości przylega ogród oraz 2 miejsca parkingowe na terenie posesji do wyłącznego korzystania!!!!

Lokal w stanie deweloperskim obejmującym:
- pompę ciepła
- ogrzewanie podłogowe
- taras
- instalacje elektryczne
- instalacje wod-kan

Istnieje możliwość skorzystania z pakietu PREMIUM obejmującego rozbudowę instalacji wod-kan oraz elektrycznej, rolety zewnętrzne, żaluzje fasadowe, fotowoltaikę, klimatyzację, schody wewnętrzne firmy Chrapkowski, płytki na tarasie, zadaszenie tarasu, zadaszenie miejsc parkingowych, elektrykę bram. 

Kilka słów o mieszkaniu:
Bardzo funkcjonalny rozkład pomieszczeń, który wpływa na codzienną wygodę każdego z domowników. Duże i jasne salony połączone z  kuchnią stanowią doskonałą przestrzeń do wspólnego spędzania czasu całej rodziny. Piętro to pokoje dla dzieci, gabinet lub sypialnie rodziców. Strefa na piętrze daje prywatność i intymność co istotnie wpływa na komfort życia.



Kilka słów o lokalizacji

Brzoza to dynamicznie rozwijająca się miejscowość, która oferuje mieszkańcom wszystkie niezbędne udogodnienia. Na miejscu znajdują się:

*Sklepy, apteki i punkty usługowe, które zapewniają codzienne zakupy bez konieczności wyjazdu do miasta,

* Szkoła podstawowa i przedszkola, znajdują się w pobliżu naszego osiedla, co znacznie ułatwia życie rodzinom z dziećmi.

* Ośrodki zdrowia i gabinety lekarskie, które zapewniają szybki dostęp do opieki medycznej,

* Komunikacja miejska – wygodne połączenia autobusowe i kolejowe z Bydgoszczą sprawiają, że bez problemu dotrzesz do pracy, szkoły czy centrum handlowego,

* Tereny rekreacyjne i leśne – Brzoza otoczona jest pięknymi lasami, które stanowią idealne miejsce na spacery, bieganie czy wycieczki rowerowe.


Osiedle "Brzozowy Zakątek " to idealne miejsce dla osób ceniących sobie szybki dojazd do Bydgoszczy. Dzięki bliskości głównych dróg, do centrum miasta dotrzesz w zaledwie 15 minut samochodem. To idealne rozwiązanie dla tych, którzy pracują w mieście, ale chcą mieszkać w spokojniejszej okolicy, z dala od zgiełku i hałasu.

„Niniejsza oferta ma charakter informacyjny i nie stanowi oferty handlowej w rozumieniu art. 66 §1 Kodeksu Cywilnego. Zdjęcia oraz wizualizacje mogą nieznacznie odbiegać od stanu rzeczywistego. Makler Nieruchomości s.c. dokłada wszelkich starań, aby informacje zawarte w ogłoszeniu były aktualne i rzetelne.”

Zapraszam serdecznie na prezentację

 

Lokalizacja nieruchomości

Kalkulatory

Kalkulator kredytowy

Wysokość raty

PLN
%

Kalkulator kosztów

Taksa notarialna
(opłata notarialna)

Wniosek o wpis do KW

VAT od prowizji
agencji nieruchomości

VAT od taksy notarialnej
(opłaty notarialnej)

Prowizja agencji nieruchomości

Wypisy aktu notarialnego

Razem

Uwaga: mogą wystąpić dodatkowe opłaty za założenie księgi wieczystej oraz ustanowienie hipoteki.

PLN
PLN
PLN
PLN
PLN
%
PLN

Podobne oferty

Bez prowizji

Dom na sprzedaż

Nowa Wieś Wielka, Brzoza

4 pokoje 88 m2 6 254,27 zł/m2
Bez prowizji
Bez prowizji

Dom na sprzedaż

Nowa Wieś Wielka, Brzoza

4 pokoje 88 m2 6 254,27 zł/m2
Bez prowizji
Bez prowizji

Dom na sprzedaż

Nowa Wieś Wielka, Brzoza

4 pokoje 88 m2 6 254,27 zł/m2
Bez prowizji
Bez prowizji

Dom na sprzedaż

Nowa Wieś Wielka, Brzoza

4 pokoje 88 m2 6 254,27 zł/m2
Bez prowizji

Doradca Rynku Nieruchomości

Proszę wprowadzić poprawne imię i nazwisko
Proszę wprowadzić poprawny numer telefonu
Proszę wprowadzić poprawny adres e-mail
Proszę zaznaczyć wymagane zgody
Rozwiąż równanie:
16 2
Niepoprawny wynik